





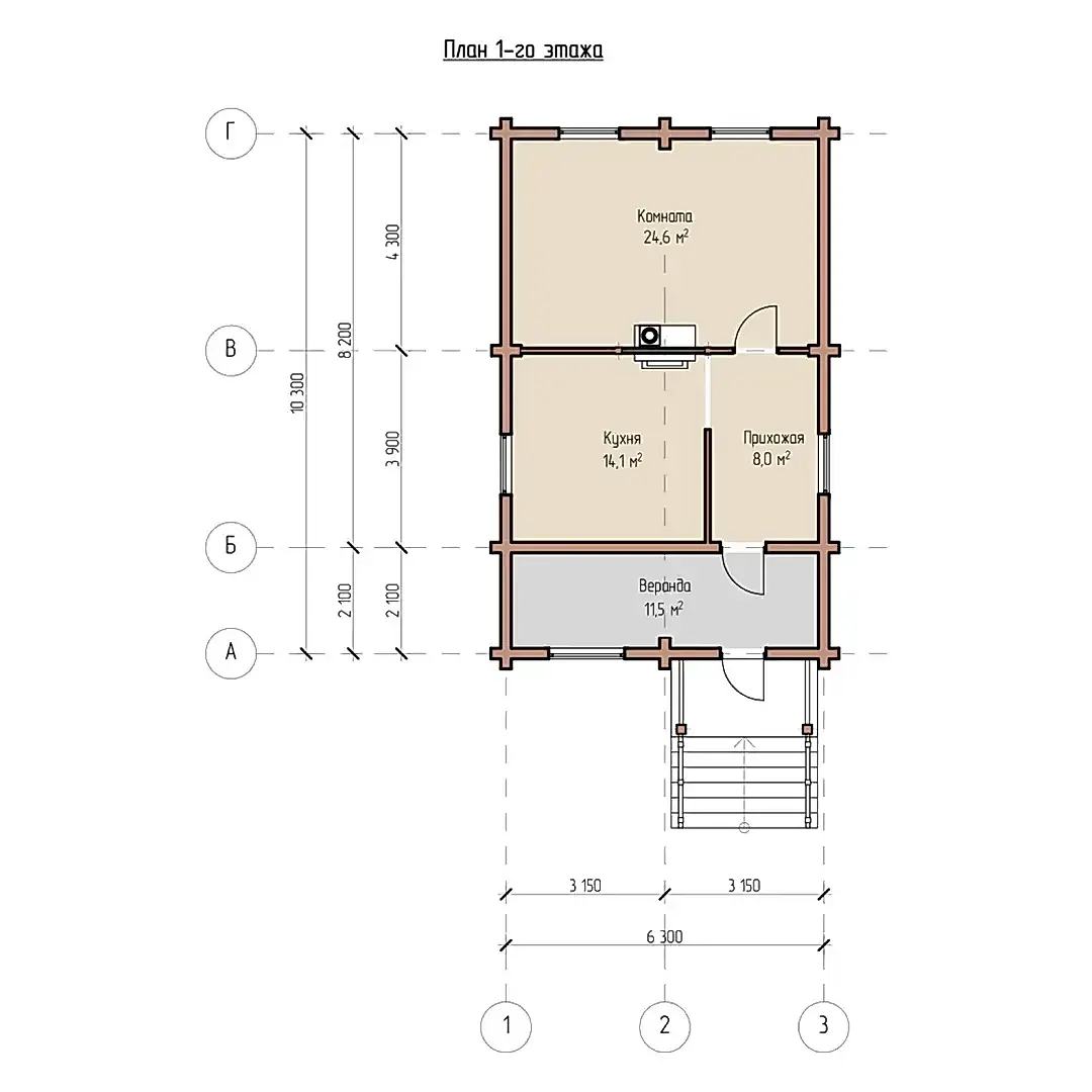
ДОМ ИЗ БРУСА ОДНОЭТАЖНЫЙ (07)
1566000 ₽
6х10 58 м.кв. Первый этап фундамент, сруб, крыша. Материал Цена Брус профилированный естественной влажности 1 566 000 руб. Брус профилированный сухой монолит 1 866 000 руб. Брус профилированный клеёный 2 900 000 руб.