













ДОМ ИЗ БРУСА ДВУХЭТАЖНЫЙ (03)
2187000 ₽
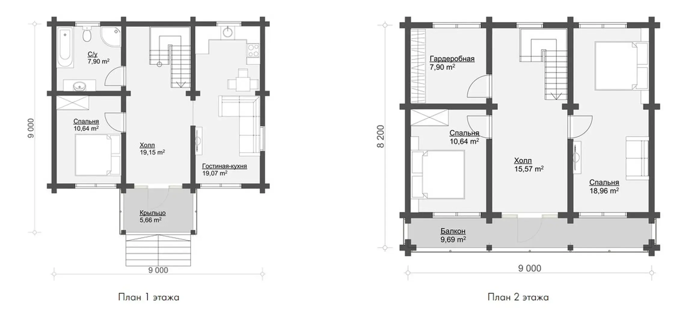
9х9 125 м.кв. Первый этап фундамент, сруб, крыша. Материал Цена Брус профилированный естественной влажности 2 187 000 руб. Брус профилированный сухой монолит 3 240 000 руб. Брус профилированный клеёный 5 022 000 руб.