Мы предлагаем
Мы производим
Услуги
Пиломатериалы
Наши мегастройки
Наши работы
Контакты
Адрес
Карта
+7(903)695-05-97
Написать
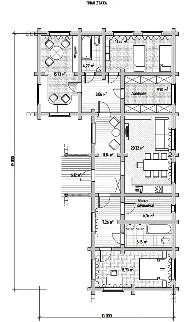
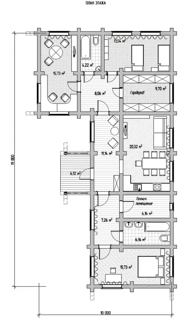
ДОМ ИЗ БРЕВНА ОДНОЭТАЖНЫЙ (04)
37800000 ₽
10х19 123 м.кв. Первый этап фундамент, сруб, крыша.
Заказать
10х19 123 м.кв. Первый этап фундамент, сруб, крыша.
Сделано на Конструкторе сайтов Рег.ру